New » Apartment » Torrevieja » Los ba
Spanish life properties
Close close menu
Close close menu
Address

Av. de las Naciones, 1A, Local 30 Ciudad Quesada (Rojales) · Postcode: 03170

phones bg

Apartment · New

Alicante · Torrevieja
340.000€
340.000€
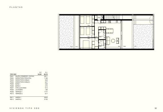
Bedrooms: 3
Bathrooms: 2
Built: 99m2
Plot: 76m2
Pool: Yes
Kitchen: 0
Garden
Communal Pool
Gated
Number of Parking Spaces: 1
Near Golf / Golf Resort Property
Near Schools
Air Conditioning: Pre-Installed
Double Bedrooms: 3
Near Commercial Center
Location: Coastal, Urbanisation
Useable Build Space: 94 Msq.
Beach: 3500 Meters
Terrace: 27 Msq.
Parking - Space
Storage / Trastero

Apartment · New

Alicante · Torrevieja
340.000€

Description

99m2
76m2
3
2
 

Main Town

Turn back to search results

Similar Properties

Contact
WhatsApp Chat with us now!