New » Apartment » Torrevieja » Los ba
Spanish life properties
Close close menu
Close close menu
Address

Av. de las Naciones, 1A, Local 30 Ciudad Quesada (Rojales) · Postcode: 03170

phones bg

Apartment · New

Alicante · Torrevieja
259.000€
259.000€
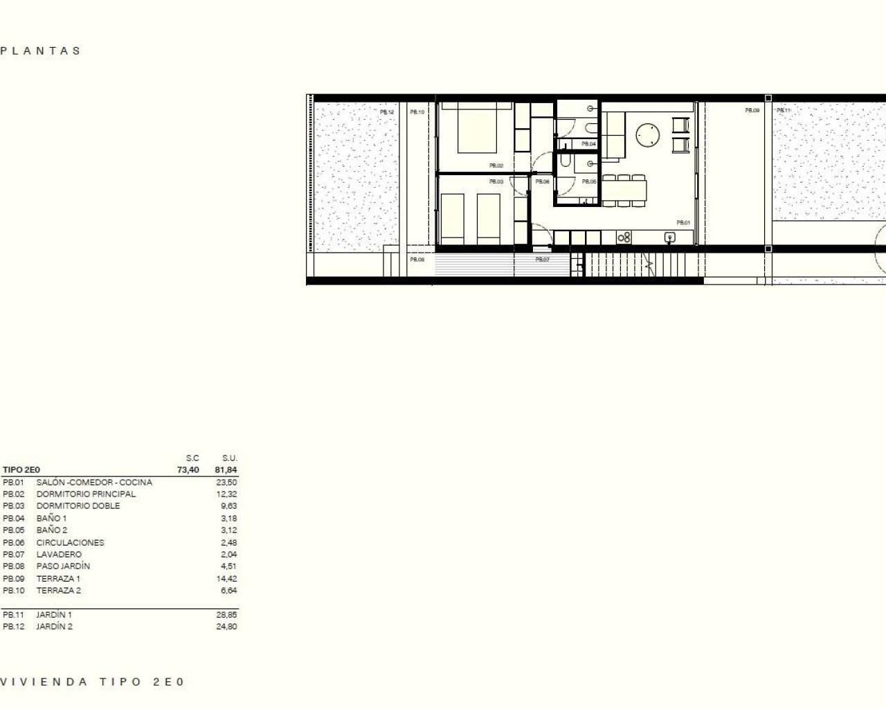
Bedrooms: 2
Bathrooms: 2
Built: 81m2
Plot: 53m2
Pool: Yes
Kitchen: 0
Garden
Communal Pool
Gated
Number of Parking Spaces: 1
Near Golf / Golf Resort Property
Near Schools
Air Conditioning: Pre-Installed
Near Commercial Center
Double Bedrooms: 2
Location: Coastal, Urbanisation
Useable Build Space: 73 Msq.
Beach: 3500 Meters
Terrace: 20 Msq.
Parking - Space
Storage / Trastero

Apartment · New

Alicante · Torrevieja
259.000€

Description

81m2
53m2
2
2
 

Main Town

Turn back to search results

Similar Properties

Contact
WhatsApp Chat with us now!