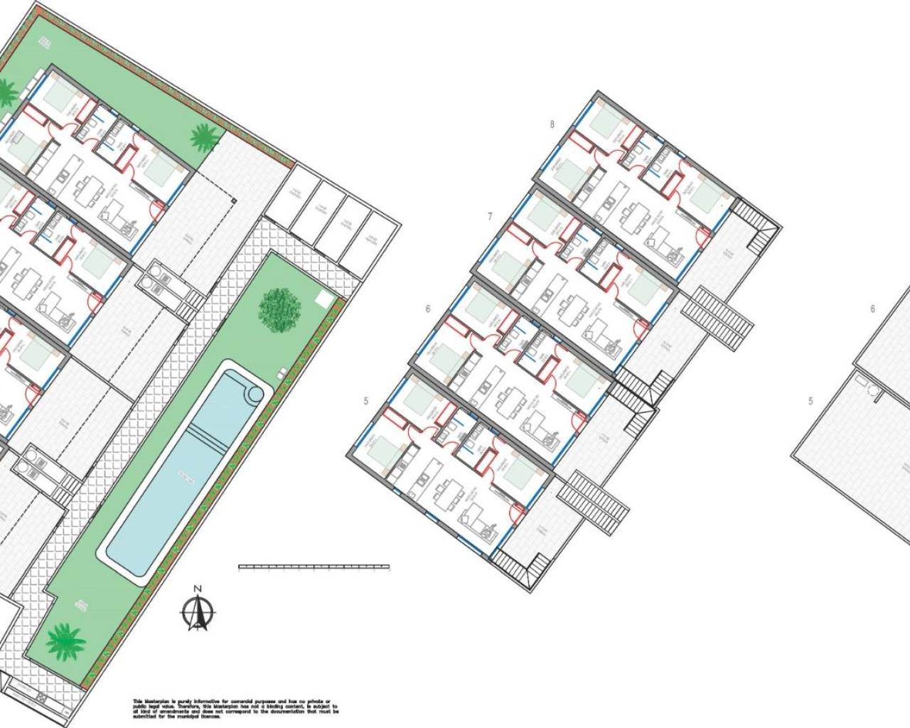
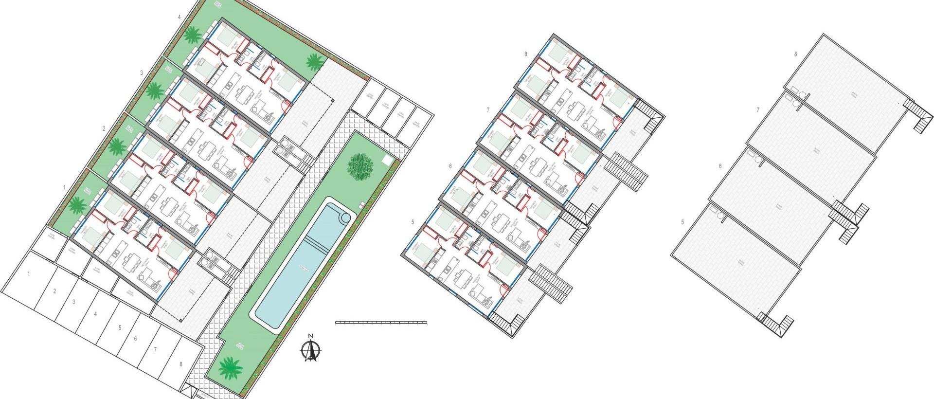
Residencias exclusivas de nueva construcción en Pilar de la Horadada, Costa Blanca Vida mediterránea moderna cerca de la playa Descubra esta exclusiva promoción de solo 8 viviendas contemporáneas en Pilar de la Horadada, situada a poca distancia del centro de la ciudad y a solo 3,5 km de las hermosas playas de Torre de la Horadada y Mil Palmeras. Esta encantadora localidad costera, situada en el extremo sur de la Costa Blanca, es conocida por su ambiente relajado, su encanto tradicional español y sus excelentes servicios. Los residentes disfrutan de una amplia gama de servicios, como supermercados, restaurantes, tiendas y zonas de ocio, todo ello a solo unos minutos. Viviendas elegantes diseñadas para ofrecer comodidad y estilo La promoción ofrece una selección de apartamentos en planta baja con terrazas frontales y jardines privados, o apartamentos en la última planta con amplias terrazas y soláriums privados. Cada vivienda cuenta con 3 dormitorios y 2 baños, uno de ellos en suite, diseñados con líneas modernas y acabados de alta calidad para garantizar el máximo confort. El complejo residencial cuenta con una piscina comunitaria rodeada de jardines, lo que crea un ambiente acogedor y tranquilo para el descanso y el ocio. Cada propiedad incluye también una plaza de aparcamiento privada y un trastero. Acabados de alta calidad y prestaciones premium Estas viviendas de nueva construcción han sido construidas con materiales de primera calidad y atención al detalle. Las especificaciones clave incluyen: Carpintería exterior de aluminio en gris antracita con rotura de puente térmico (marca CORTIZO) Acristalamiento cuádruple con protección solar Persianas eléctricas de aluminio en los dormitorios Inodoros suspendidos y duchas a ras de suelo con suelo integrado Muebles de baño con espejos retroiluminados por LED y toalleros eléctricos Cocina totalmente equipada con electrodomésticos Miele Iluminación LED interior y exterior en toda la vivienda Instalación completa de aire acondicionado por conductos (sistema Fujitsu) Ubicación perfecta en la Costa Blanca Pilar de la Horadada tiene una ubicación ideal tanto para vivir como para pasar las vacaciones. La localidad combina lo mejor de la vida tradicional española con unas infraestructuras modernas y la proximidad al mar. Distancias principales: Playas de Torre de la Horadada y Mil Palmeras: 3,5 km Campo de golf Lo Romero: 6 km Aeropuerto de Murcia-Corvera: 40 km Aeropuerto de Alicante: 55 km Puerto deportivo de San Pedro del Pinatar: 10 km Su nuevo hogar bajo el sol le espera Disfrute de la combinación perfecta de diseño, comodidad y estilo de vida mediterráneo en estas viviendas de nueva construcción en Pilar de la Horadada. Tanto si busca un refugio para las vacaciones como una residencia para todo el año, este exclusivo proyecto ofrece el equilibrio ideal entre calidad, ubicación y vida moderna. Póngase en contacto con nosotros hoy mismo para obtener más información o concertar una visita. 347