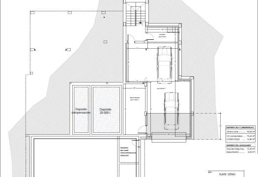
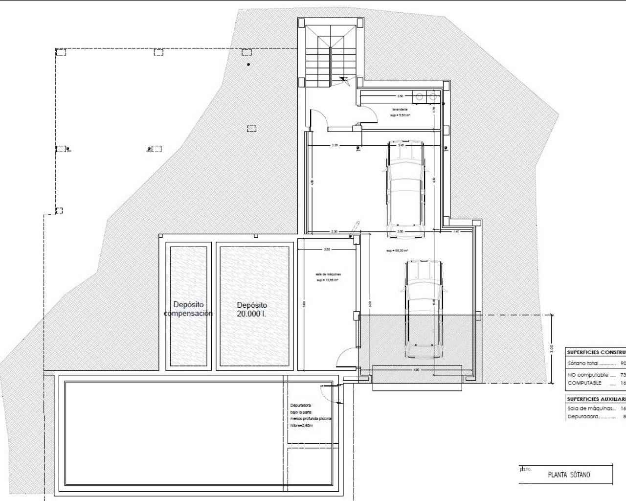
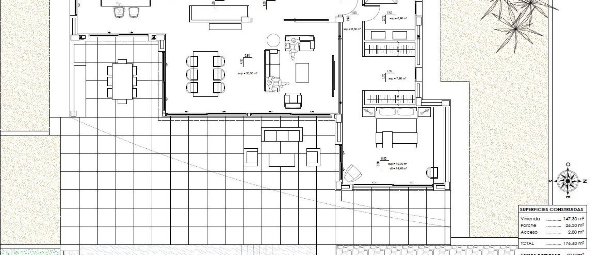
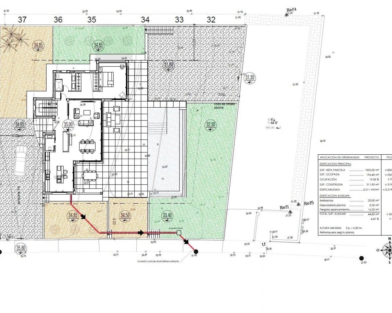
VILLA DE LUJO DE OBRA NUEVA EN MORAIRA Villa de lujo de nueva construcción con las mejores calidades, y a poca distancia de las hermosas playas y del centro de Moraira. Esta villa de lujo se distribuye en 3 plantas: en la planta baja (147,30m2) se encuentra un amplio y luminoso salón junto a la cocina abierta con isla para cocinar, un aseo de invitados y un dormitorio con baño en suite. En el exterior de esta planta encontramos la piscina y la zona de barbacoa. Luego subimos a la planta superior (133,65m2) donde encontramos 3 amplias habitaciones con su baño en suite. Por último la planta sótano, donde se accede a un garaje doble y a la lavandería. EXTRAS: Carpintería técnica con cristal de seguridad, cocina completa con electrodomésticos Siemens, baños y grifería completos de la marca Roca, iluminación LED, sistema de aerotermia para agua caliente y suelo radiante, aire acondicionado por conductos (frío y calor) en toda la casa, placas solares, armarios empotrados, persianas eléctricas, alarma interior, preinstalación de alarma exterior y cámaras de seguridad. Piscina rectangular con sistema de desbordamiento de 12x4,5 metros, zona de barbacoa de 22m2, lavadero, jardín terminado. Puertas de acceso automáticas. Clasificación energética A. Orientación sur. Moraira es un pequeño pueblo con buenos restaurantes, bares y muchos supermercados alrededor. Hay una playa muy agradable justo al lado del pueblo que es ideal para las familias. El paseo marítimo ofrece unas vistas tremendas del Peñón de Ifach al otro lado de la bahía de Calpe. El camino de la costa de llegar allí es bien vale la pena hacer con algunas vistas espectaculares. Moraira situado a 1 hora 15 minutos al norte de la A7 desde el aeropuerto de Alicante es bastante fácil de llegar. Es aproximadamente la misma distancia o un poco menos al sur del aeropuerto de Valencia. 347