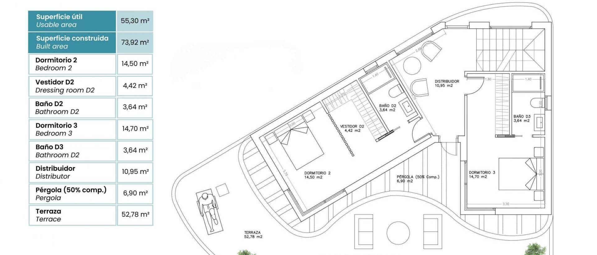
Villa en La Zenia que redefine el concepto de lujo mediterráneo A solo 700 metros de la playa de La Zenia, una de las más exclusivas de la Orihuela Costa, esta impresionante villa combina diseño contemporáneo, entorno exclusivo y una ubicación inigualable. Un hogar concebido para quienes buscan lo excepcional: privacidad, confort absoluto y una experiencia de vida junto al mar única. Ubicada sobre una amplia parcela de 592 m², esta villa de lujo independiente dispone de 3 dormitorios y 4 baños, y se distribuye en dos plantas con espacios amplios y luminosos. En la planta baja, un espectacular salón-comedor de concepto abierto fluye hacia la cocina de diseño y se abre a través de grandes ventanales al jardín privado y a la piscina con jacuzzi, creando una continuidad perfecta entre interior y exterior. Esta zona se convierte en un auténtico oasis de relajación, ideal para disfrutar del clima privilegiado de la Costa Blanca. La parte trasera de la vivienda cuenta con acceso independiente y zona de aparcamiento privado para 2 coches, garantizando comodidad y privacidad. En esta misma planta se ubica un dormitorio principal con vestidor y baño en suite, además de un baño adicional para invitados. La primera planta alberga dos dormitorios adicionales, ambos con baño en suite, vestidor y acceso directo a una gran terraza con espectaculares vistas abiertas al entorno. En la planta superior se encuentra el solárium privado, equipado con ducha y cocina de verano, un espacio exclusivo para disfrutar de los atardeceres dorados sobre el mar y el golf. Cada detalle ha sido cuidadosamente seleccionado para ofrecer máximo confort y sofisticación: doble acristalamiento, puerta de entrada acorazada, persianas eléctricas, video portero, sistema domótico, baños completos con suelo radiante, sistema de Aerotermia, aire acondicionado por conductos, e iluminación LED interior y exterior. La cocina amueblada y equipada con electrodomésticos de alta gama, con opción de personalización en los acabados, completa esta obra maestra de diseño y elegancia. La ubicación es inmejorable. A pocos minutos se encuentran algunos de los campos de golf más exclusivos del Mediterráneo, como Villamartín Golf, Las Ramblas Golf, Campoamor Golf y Las Colinas Golf & Country Club, todos ellos destinos de referencia internacional. Además, el Aeropuerto Internacional de Alicante-Elche se encuentra a tan solo 45 minutos en coche, y el Aeropuerto de Murcia-Corvera a 35 minutos, ofreciendo una conexión perfecta con las principales ciudades europeas. Rodeada de las playas más emblemáticas de la Orihuela Costa, como La Zenia, Cala Capitán y Cala Cerrada, y muy cerca del exclusivo centro comercial La Zenia Boulevard, esta villa combina privacidad, elegancia y proximidad a todo lo que define el estilo de vida mediterráneo más selecto. Esta Villa no es solo una vivienda, sino una obra de arquitectura pensada para quienes buscan lo extraordinario. Contacta con nosotros y descubra el privilegio de vivir en una de las villas más exclusivas de la Costa Blanca. 347