Obra Nueva » Apartmento » Villajoyosa &raqu
Spanish life properties
Cerrar close menu
Cerrar close menu
Dirección

Av. de las Naciones, 1A, Local 30 Ciudad Quesada (Rojales) · CP: 03170

phones bg

Apartmento · Obra Nueva

Alicante · Villajoyosa
340.000€
340.000€
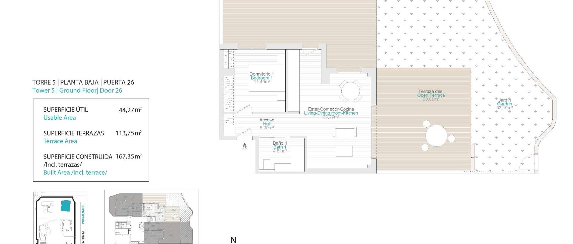
Habitaciones: 1
Baños: 1
Construidos: 54m2
Parcela: 53m2
Piscina:
Cocinas: 0
Jardín
Communal Pool
key ready
Gated
Number of Parking Spaces: 1
Near Schools
Air Conditioning: Pre-Installed
Near Commercial Center
Location: Coastal, Urbanisation
Elevator/Lift
Beach: 50 Meters
First Line to the Sea
Terrace: 60 Msq.
Double Bedrooms: 1
Parking - Space
Useable Build Space: 44 Msq.
Storage / Trastero

Apartmento · Obra Nueva

Alicante · Villajoyosa
340.000€

Descripción

54m2
53m2
1
1
 

Localización

Volver a los resultados de la búsqueda

Propiedades similares

Contactar
WhatsApp Chat with us now!